-
-
-
Tổng tiền thanh toán:
-

Đặc điểm chung của cầu nâng cắt kéo di động 3 tấn kiểu di động 1 tầng nâng hiệu AUTOLIFT (cầu nâng kiểu xếp )
+ Cơ cấu xy-lanh với phớt dầu sử dụng của Nhật Bản
+ Chuông báo dừng an toàn
+ Van an toàn chống nổ hệ thống thủy lực
+ Công tắc giới hạn chiều cao
+ Cơ cấu khóa hãm an toàn với cóc hãm kết hợp khí nén đảm bảo độ an toàn tuyệt đối trong mọi trường hợp, ngay cả khi ỗng dẫn dầu thủy lực bị phá vỡ.

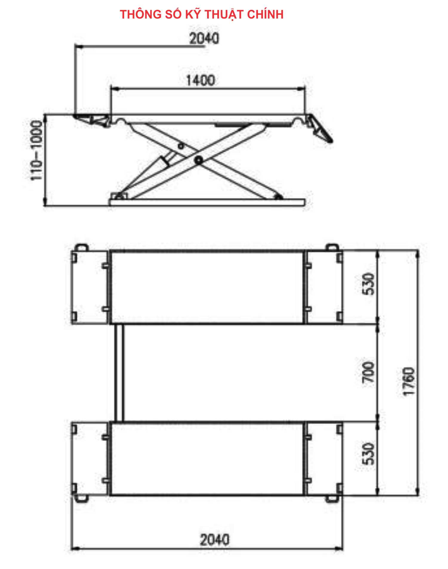
Thông số kỹ thuật:
Model : AT-3000C
+ Tải trọng nâng: 3000Kg
+ Chiều cao nâng từ 110-1000mm
+ Chiều rộng bàn nâng 530 mm
+ Chiều dài bàn nâng 1400mm
+ Chiều dài tổng cộng 2040 mm ( thêm chiều dài bàn dẫn )
+ Thời gian nâng - hạ : 30S
+ Công suất mô-tơ: 2,2 Kw

Thông tin liên hệ mua cầu nâng ô tô
Tại Hà Nội 0975 003 008/ 0946 708 598 Tại TP. HCM 0962 008 009
VUI LÒNG XEM THÊM CẦU NÂNG Ô TÔ