- 
														
 - 
														
- 
																Tổng tiền thanh toán:
 
 - 
																
 
Mã sản phẩm: ATL-500
Thương hiệu: AUTOLIFT Loại: Cầu nâng ô tô

Là loại cầu nâng đỗ xe ô tô chuyên phục vụ cho việc trông giữ xe hơi ở nhưng nơi thiếu không gian đỗ và dừng xe ô tô và cũng là xu hướng phát triển chung trong các đô thị hiện đại đòi hỏi cần có nhiều khu vực đỗ xe hơn mà diện tích mặt bằng lại quá eo hẹp.
 - Dùng để giữ xe du lịch Sedan, xe SUV đến 16 chỗ và xe tải nhẹ đến 1,5 tấn trong nhà để xe ( có thể sử dụng ngoài trời, sêm một số chi tiết phù hợp với không gian ngoài trời chịu mưa nắng )
- Giúp cho việc để xe gọn gàng hơn.
- Giúp tiết kiệm không gian trong chỗ đỗ xe.
- Sử dụng ở các bãi đỗ xe trong nhà hay ngoài trời
- Sử dụng trong các hầm để xe có chiều cao đủ lớn
Thông số kỹ thuật chính :
Model: ATL-500
Trọng lượng nâng xe :  2,7 Tấn
Tốc độ nâng: 55 -60 giây
Chiều cao nâng max 2100mm
Chiều rộng bàn nâng 2100mm
Chiều rộng toàn bộ 2550mm
Chiều cao toàn bộ 3500mm
Chiều dài toàn bộ 5100mm
Điện áp 1phase -220V/50HZ
Công suất mô tơ 2,2 KW
Hoạt động: ấn nút / điều khiển từ xa ( lựa chọn )
Dẫn động xy lanh thủy lực
Trọng lượng cầu nâng 1100kg
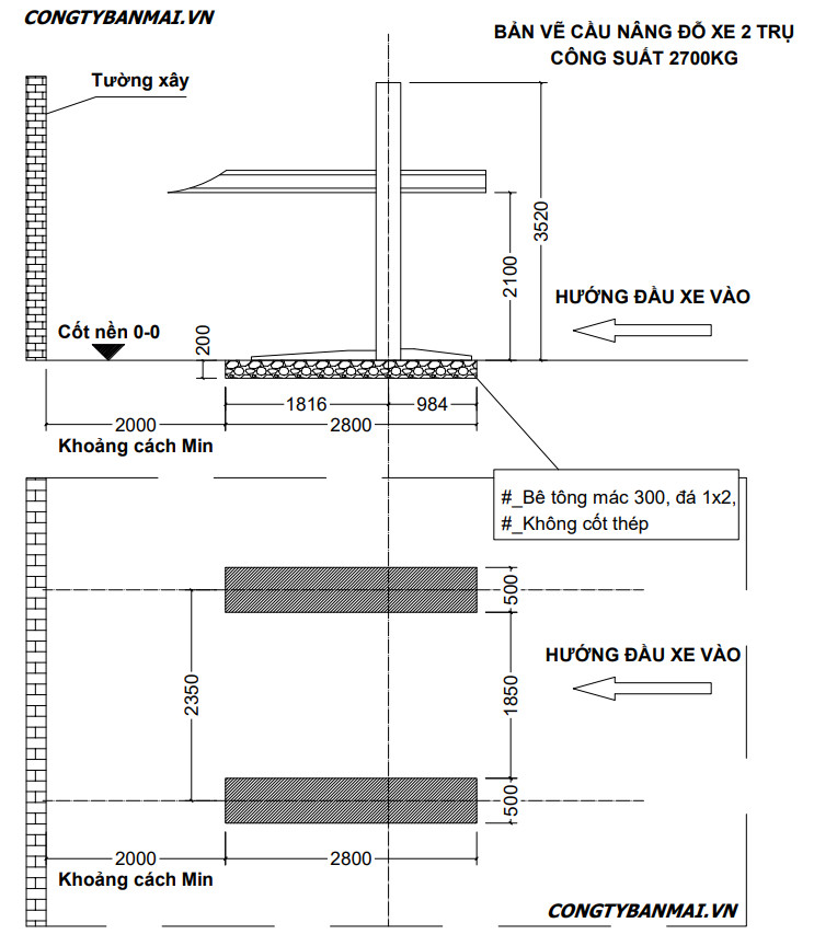
BẢN VẼ THIẾT KẾ MÓNG
