- 
														
 - 
														
- 
																Tổng tiền thanh toán:
 
 - 
																
 
							
							
							
						Hướng dẫn lắp đặt cầu nâng 2 trụ đúng cách
									
									
										
										28/08/2023
									
								
							
								HƯỚNG DẪN LẮP ĐẶT CẦU NÂNG 2 TRỤ TRỤ ĐÚNG CÁCH
I. Xác định chính xác thông số kỹ thuật của cầu nâng 2 trụ
II. Phải khảo sát và đo đạc vị trí lắp cầu nâng 2 trụ
III. Thi công làm móng cầu nâng theo bản vẽ của nhà cung cấp
IV. Cách Lắp đặt cầu nâng 2 trụ theo đúng quy trình
 
I. Xác định các Thông số Kỹ thuật cho Cầu nâng 2 trụ cần Lắp đặt:
1- Tải trọng nâng tối đa: Tải trọng nâng phụ thuộc vào trọng lượng của xe cần nâng. Thông thường, cầu nâng 2 trụ có khả năng nâng từ 3 tấn đến 5 tấn.
2- Chiều cao nâng tối đa: Cần đảm bảo xe có thể được nâng đến độ cao cần thiết để thực hiện các công việc sửa chữa và bảo dưỡng.
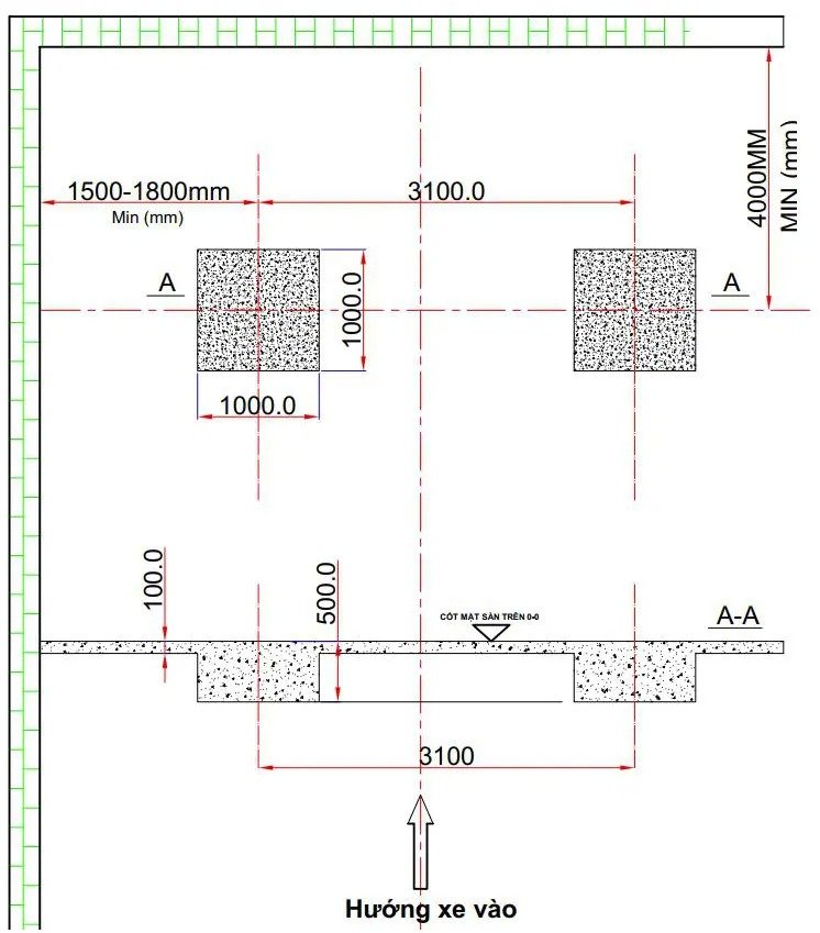
3- Khoảng cách giữa 2 trụ nâng: Cầu nâng 2 trụ loại 3 đến 4 tấn thường có khoảng cách tính từ tim của 2 trụ khoảng từ 3000mm đến 3100mm.
4- Điện áp sử dụng: Cần phải sử dụng điện áp phù hợp với yêu cầu của khu vực lắp đặt cầu nâng.
5- Kích thước chiều cao của trụ nâng: Cầu nâng 2 trụ với khả năng nâng từ 3 đến 4 tấn thường có chiều cao của trụ nâng nằm trong khoảng từ 2800mm đến 3800mm.

II. Khảo sát và Đo đạc Vị trí Lắp đặt Cầu nâng:
1- Xác định vị trí lắp đặt: Quan trọng để đảm bảo an toàn cho cả người và xe khi sử dụng cầu nâng, và tránh gây cản trở cho các hoạt động khác trong xưởng.
2- Đo đạc kích thước không gian lắp đặt: Cần phải đo chiều dài, chiều rộng và chiều cao của không gian lắp đặt để đảm bảo rằng cầu nâng vừa vặn, không ảnh hưởng đến các hoạt động khác trong xưởng. Chiều cao thấp nhất của mái nhà cần đạt ít nhất 4000-5000mm, chiều rộng của không gian lắp đặt cần ít nhất là 4000-4500mm và chiều dài không gian lắp đặt cầu nâng cần từ 5000-6000mm.
3- Xác định khoảng cách đến vật cản phía trước: Cần xác định khoảng cách từ tim trụ nâng đến vị trí vật cản gần nhất ở phía trước, ví dụ như tường xây, và cần đảm bảo khoảng cách này không nhỏ hơn 3500-4000mm.
4- Xác định khoảng cách đến tường bên ngoài: Cần phải xác định khoảng cách từ mép trụ nâng bên ngoài đến tường xây, và cần đảm bảo khoảng cách này không nhỏ hơn 1500mm.
5- Xác định khoảng cách đến vật cản bên trong: Cần phải xác định khoảng cách từ mép trụ bên trong của cầu nâng 2 trụ đến vị trí vật cản bên trong gần nhất, và khoảng cách này cần từ 600-1000mm.
Những yếu tố này cùng nhau đảm bảo rằng việc xác định thông số kỹ thuật và lựa chọn vị trí lắp đặt cầu nâng 2 trụ sẽ đảm bảo cho quá trình sử dụng hiệu quả an toàn nhất cho quý khách hàng.

III. Quy trình thi công làm móng cầu nâng 2 trụ
Dưới đây là quy trình chi tiết để lắp đặt cầu nâng 2 trụ một cách đúng kỹ thuật theo bản vẽ thiết kế móng cầu nâng:

1. Phải xác định đúng vị trí và kích thước:
- Xác định vị trí cũng như kích thước của móng cầu nâng, bao gồm chiều cao, chiều rộng và chiều dài.
- Tuân theo thông số kỹ thuật trong thiết kế, đặc biệt nếu có bản vẽ chi tiết.
2. Chuẩn bị máy móc và vật tư:
- Đảm bảo có đủ máy móc và vật tư cần thiết để thực hiện việc thi công móng cầu nâng.
- Công cụ gồm máy móc như là máy khoan, máy đục bê tông, máy đào đất...( cũng tùy thuộc vào vị trí đào hố móng để lựa chọn công cụ thi công cho phù hợp)
- Vật tư để thi công móng thường là Xi măng P400, đá , cát vàng, nước sạch.
3. Đào đất và chuẩn bị móng:
- Sử dụng máy xúc hoặc máy đào để đào đất tại vị trí lắp đặt móng.
- Thực hiện đào đất theo kích thước và hình dạng phù hợp theo yêu cầu của thiết kế.
- Làm sạch đất và tạo đáy móng bằng cách đổ cát và sử dụng máy đầm cóc để nén chặt đáy móng.
4. Lắp đặt cốt thép móng ( Nếu nền đất yếu)
- Theo yêu cầu của thiết kế, lắp đặt cốt thép cho móng.
-  Lớp thép phải đặt tại vị trí dưới cùng của hố móng móng cách đáy 20mm
( Thép cần được tạo thành khung vuông và được buộc lại với nhau ) 
5. Đổ bê tông:
- Sau khi đã lắp đặt cốt thép, tiến hành đổ bê tông vào móng.
- Đảm bảo quá trình đổ bê tông được thực hiện đều và đủ lượng để lấp đầy toàn bộ khoảng trống trong móng.
Lưu ý:
- Sử dụng cát vàng và đá sỏi 4x6 để đảm bảo chất lượng của bê tông.
- Sử dụng xi măng P400 để đảm bảo tính chất cứng và độ bền của bê tông.
- Khi đổ bê tông cho cầu nâng 2 trụ, chỉ đổ một lần do đó phải tính đủ số lượng bê tông cần thiết cho 2 hố móng.
- Với cầu nâng được xây dựng ngoài trời, đợi bê tông khô hoàn toàn trong khoảng 8-15 ngày trước khi lắp đặt.( nếu cần lắp nhanh thì phải thêm phụ gia)
- Với cầu nâng được xây dựng trong nhà có mái che, đợi từ 10-20 ngày cho bê tông khô hoàn toàn trước khi lắp đặt.
- Sau khi đổ bê tông, phải kiểm tra và đo đạc ại để đảm bảo rằng chiều cao cốt móng của hai trụ có cùng chiều cao ( Đảm bảo bề mặt bê tông ở cả hai bên móng phẳng tương đương nhau, kỵ nhất bên cao bên thấp) 
IV. HƯỚNG DẪN LẮP ĐẶT CẦU NÂNG 2 TRỤ THEO QUY TRÌNH CHUẨN
Dưới đây là hướng dẫn chi tiết về việc lắp đặt cầu nâng 2 trụ theo quy trình kỹ thuật đúng như sau:
Bước 1: Xác định vị trí lắp đặt và chuẩn bị móng cầu nâng
Đảm bảo đã hoàn thành việc xác định vị trí lắp đặt và đã hoàn thiện móng cầu nâng.
Chờ ít nhất từ 7 đến 10 ngày cho bề mặt bê tông móng cầu khô hoàn toàn trước khi tiến hành lắp đặt.
Bước 2: Chuẩn bị dụng cụ
Đảm bảo chuẩn bị sẵn các công cụ cần thiết bao gồm Khoan bê tông, Búa tạ, Bu lông, dây tuy-ô, máy soi laser, máy mài và đồng hồ đo điện.
Bước 3: Lắp đặt trụ cầu nâng
- Khi tiến hành lắp đặt cầu nâng 2 trụ, việc đặt trụ vào vị trí đã xác định có vai trò quan trọng để đảm bảo tính ổn định và an toàn. Hãy đảm bảo rằng chân trụ tiếp xúc chính xác với các đường vạch dấu trên nền. Điều này đảm bảo rằng cầu nâng sẽ hoạt động đúng cách và không gây ra sự cố trong quá trình sử dụng. Khi đặt trụ xuống nền, cần chú ý ép thẳng để tránh tình trạng bất ổn sau này. Điều này là bước quan trọng đầu tiên để bắt đầu quá trình lắp đặt cầu nâng một cách chính xác..
- Kiểm tra và điều chỉnh chiều cao và độ nghiêng của cả hai trụ để đảm bảo tính cân bằng.
Bước 4: Cố định chân cầu
- Khoan lỗ bu lông nở là một phần quan trọng trong quy trình xây dựng, đặc biệt là khi cần cố định các bộ phận như chân cầu. Trong bài viết này, chúng ta sẽ tìm hiểu cách tiến hành khoan 6 lỗ bu lông nở trên nền một cách hiệu quả.
- Để bắt đầu, chúng ta cần chuẩn bị đầy đủ các công cụ và vật liệu cần thiết, bao gồm máy khoan, mũi khoan phù hợp, bu lông nở, móc đo và bộ khóa. Trước khi tiến hành khoan, hãy đảm bảo đã đo và đánh dấu đúng vị trí cần khoan để đảm bảo tính chính xác và đồng đều của các lỗ khoan.
- Khi tiến hành khoan, quan trọng nhất là giữ vững vị trí của tay cầu. Đảm bảo không di chuyển tay cầu trong suốt quá trình khoan lỗ để tránh sai lệch vị trí và ảnh hưởng đến độ chính xác của kết cấu sau này. Khi đã khoan các lỗ bu lông nở, ta tiến hành đặt bu lông vào các lỗ và sử dụng bộ khóa để cố định chúng vững chắc.
Bước 5: Điều chỉnh bộ phận khác của cầu nâng
Xem xét và điều chỉnh các bộ phận khác của cầu nâng để đảm bảo tính chính xác và tuân thủ kỹ thuật, đo đạc các thông số một cách chính xác.
Bước 6: Đổ dầu thủy lực vào bình chứa dầu
- Dầu thủy lực cần 10-12 lít dầu thủy lực vào bình chứa dầu của cầu nâng 2 trụ ( tùy loại cầu nâng )
Bước 7: Cân bằng cáp thép
- Thực hiện việc cân bằng cáp thép bằng cách nới và xiết bu-lông đầu cáp ở cả hai bên trụ.
- Sử dụng ròng rọc để điều chỉnh độ cao đồng nhất cho cả hai bên trụ.
Bước 8: Lắp đặt dầm ngang
Trong quá trình xây dựng và lắp đặt các kết cấu, việc cố định dầm ngang và lắp rơ le hành trình là những bước không thể thiếu. Bài viết này sẽ trình bày về những bước cơ bản trong quá trình này để đảm bảo tính an toàn và hiệu quả của công việc.
- Sau khi hoàn thành việc lắp đặt dầm ngang, bước tiếp theo là lắp rơ le hành trình cùng với thanh xà ngang an toàn. Rơ le hành trình đóng vai trò quan trọng trong việc giám sát và điều khiển hoạt động của cơ cấu, đảm bảo rằng tay cầu hoạt động đúng theo quỹ đạo và đáp ứng các yêu cầu an toàn.
- Khi lắp rơ le hành trình, cần tuân theo quy cách và hướng dẫn của nhà sản xuất. Đảm bảo rằng rơ le được gắn chính xác và đúng vị trí để đảm bảo hoạt động ổn định. Thanh xà ngang an toàn có vai trò giới hạn phạm vi hoạt động của tay cầu, đảm bảo rằng tay cầu không vượt quá giới hạn an toàn.
Bước 9: Lắp đặt tay nâng
Đặt hai tay nâng và đảm bảo chúng hoạt động đồng bộ.
Xác định vị trí cho tay nâng bằng cách gắn chốt khóa ở phần dưới của chúng.
Bước 10: Kiểm tra và thử nghiệm
- Trước khi tiến hành sử dụng cầu nâng, hãy thực hiện kiểm tra kỹ lưỡng cho tất cả các thành phần đã được lắp đặt, nhằm đảm bảo rằng hoạt động sẽ diễn ra đúng và hiệu quả. Sau đó, bạn có thể thực hiện bước thử nghiệm bằng cách nhẹ nhàng tăng độ cao của cầu nâng để nâng một phương tiện. 
- Trong quá trình thử nghiệm, cần đảm bảo rằng cầu nâng hoạt động một cách ổn định và đáng tin cậy, để đảm bảo an toàn cho cả người sử dụng và phương tiện được nâng lên
Bước 11: Đào tạo và hướng dẫn cách Sử dụng Cầu nâng 2 trụ và Biện pháp An toàn
- Kiểm tra Trước sử dụng: Đảm bảo cầu nâng và các bộ phận liên quan trong tình trạng hoàn hảo trước khi sử dụng. Nếu phát hiện hỏng hóc hoặc thiếu sót, không sử dụng và thông báo cho người có thẩm quyền.
- Trọng lượng Tối đa: Luôn tuân thủ trọng lượng tối đa cho phép của cầu nâng. Không bao giờ vượt quá trọng lượng này để tránh nguy cơ hỏng hóc và tai nạn.
Vị trí Xe cần nâng: Đảm bảo xe cần nâng được đặt ở vị trí chính xác trên bề mặt cầu nâng và khoá bánh xe an toàn.
- Sử dụng Đúng cách: Tuân thủ hướng dẫn sử dụng của nhà sản xuất. Không sử dụng cầu nâng để làm bất kỳ việc gì khác ngoài mục đích nâng xe.
Biện pháp An toàn: Luôn đảm bảo có bộ đồ bảo hộ cá nhân như mũ bảo hiểm, găng tay và áo chống thấm dầu khi sử dụng cầu nâng.

Hướng dẫn cách Bảo trì Cầu Nâng Ô tô 2 Trụ và Các Lưu ý
- Bảo trì định kỳ: Thực hiện kiểm tra và bảo dưỡng định kỳ theo hướng dẫn của nhà sản xuất. Đảm bảo rằng các bộ phận hoạt động một cách hiệu quả và an toàn.
- Bôi trơn: Duy trì các bộ phận chuyển động bằng cách bôi trơn thường xuyên để đảm bảo khả năng hoạt động mượt mà.
- Kiểm tra Thường xuyên: Theo dõi các dấu hiệu của hỏng hóc như tiếng kêu lạ, rung động bất thường hoặc rò rỉ dầu. Nếu phát hiện, ngừng sử dụng ngay và thực hiện sửa chữa.
Chúng tôi luôn lắng nghe và sẵn sàng hỗ trợ mọi vấn đề về cầu nâng !
Nếu bạn đang tìm kiếm giải pháp về mua hoặc cách lắp đặt cầu nâng 2 trụ hoặc có bất kỳ thắc mắc nào liên quan, xin vui lòng chia sẻ tại phần bình luận dưới đây. Công ty Ban Mai cam kết sẽ nhanh chóng giải đáp mọi thắc mắc của bạn. Chúng tôi trân trọng mọi đóng góp và sự hợp tác từ Quý Khách Hàng.
Địa chỉ Hà Nội: Số 03-NV, Khu đấu giá Tứ Hiệp, Đường Vũ Lăng, Thanh Trì, TP. Hà Nội, Hotline  0946 708598
Địa chỉ TP HCM: 15 Hà Huy Giáp, Phường Thạnh Lộc, Quận 12, TP. Hồ Chí Minh, Hotline 0962 008 009
XEM THÊM VỀ CẦU NÂNG Ô TÔ